海の見える交流施設える交流施設 コンペティション案
DATE
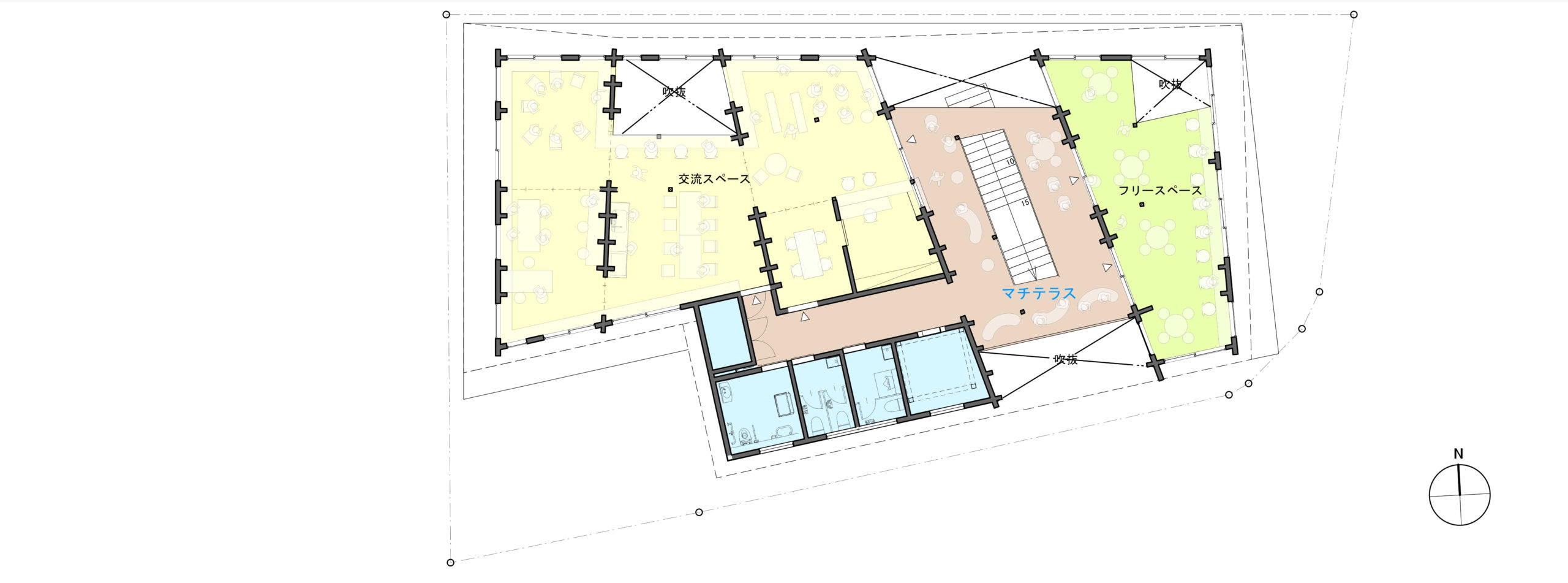
用途:交流施設
住所:島根県隠岐の島町
規模:木造 2階
敷地面積:472㎡
建築面積:292.3㎡
延床面積:369.7㎡
アトア設計事務所と共同提案

「隠岐の豊かな自然、文化、営みを紡ぐまちのLighthouse(灯台)」
隠岐の島では、豊かな自然環境のもと、人々がその恵みを守りながら、独自の文化と暮らしを紡いできました。信仰の地としての歴史、隠岐造と呼ばれる建築様式、進化の過程を物語る希少な生物や固有種、複雑で繊細な植生。こうした自然と文化、そしてそこに根ざす人々の営みは、かけがえのない地域資源です。
こうしたひとつひとつの価値を丁寧に見つめ直し、新たなかたちで伝えていくことこそ、隠岐らしい“現代の産業振興”といえるのではないでしょうか。かつて出雲大社西郷分院が、島の「精神的な灯台」として人々を照らしていたように、この新たな施設も、まち、商業、交流が交わる複合拠点として、未来への希望を灯します。

海とまちがつながる風景が、町の玄関口として記憶に残る場所を形づくる。

建物が広場のように機能し、朝市や体験型店舗、海を望むテラスを通じて、西郷港の賑わいと歩けるまちづくりを促す。

四方それぞれの特性を活かし、静・動・滞・流の多様な活動が、まちの顔となる。

「マチラボ」「マチドマ」「マチニワ」の3空間を通じて、交流や体験を促す商業施設。ものづくりの現場を開き、特産品への理解と愛着を育み、隠岐発の創造的な産業の育成を目指す。

商業施設を東西に分棟することで、多様な運営形態や空間の使い分けが可能に。東棟は半屋外空間として開放的に活用し、西棟は空調の効いた屋内空間として快適性を確保。営業時間の設定も柔軟で、「マチドマ」「マチラボ」「マチニワ」といった場がまちに賑わいをもたらす。

交流スペースとフリースペースを東西に分け、管理・運営のしやすい構成。両者の中間に位置する「マチテラス」は、外部から誰もが自由に直接アクセスできる開かれた空間。メイン空間としての利用はもちろん、東西それぞれの空間のバッファーや延長としても柔軟に活用される。






